欢迎来到安平县秉德丝网制品有限公司网站!

联系我们
网站地图 | 
安平县秉德丝网制品有限公司

热门关键词搜索: 双边丝护栏网锌钢护栏网勾花护栏网市政护栏网车间隔离栅框架护栏网防眩网

网站首页 > 技术支持

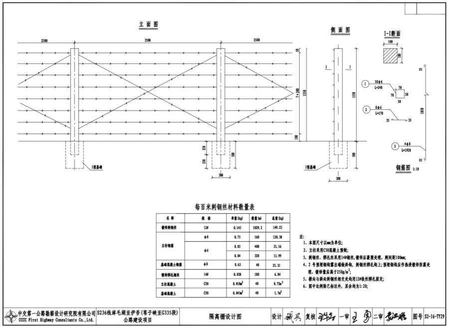
S236线淖毛湖至伊吾(苇子峡至G335段)公路建设项目刺钢丝隔离栅生产厂家

添加日期:2025-07-24 阅读量:

S236线淖毛湖至伊吾(苇子峡至G335段)公路建设项目刺钢丝隔离栅生产厂家

1、本图尺寸以mm为单位。

2、立柱采用C30混凝土预制。

3、刺钢丝、绑扎丝采用14#钢丝,镀锌后裹塑处理,刺间距100mm。

4、2号预埋钢钩露出端做斜钩,刺钢丝扎钩上;预钢钩应作热浸镀锌防腐处理,镀锌量应高于250g/㎡。

5、横向与斜向刺钢丝相交处均用12#铁丝扎固定。

6、图中比例除已标注外,其余均为1: 20。


  
24小时咨询热线:13292231119QQ在线咨询:3219383557 微信号:13292231119
二维码 二维码
在线客服

安平县秉德丝网制品有限公司

QQ交谈

咨询电话

实力打造品质

诚信统领市场