欢迎来到安平县秉德丝网制品有限公司网站!

联系我们
网站地图 | 
安平县秉德丝网制品有限公司

热门关键词搜索: 双边丝护栏网锌钢护栏网勾花护栏网市政护栏网车间隔离栅框架护栏网防眩网

网站首页 > 技术支持

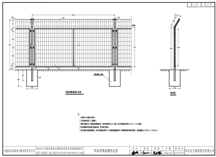
S46长兴至高淳高速公路皖浙省界至郎溪西枢纽段焊接网隔离栅生产厂家

添加日期:2025-07-24 阅读量:

S46长兴至高淳高速公路皖浙省界至郎溪西枢纽段焊接网隔离栅生产厂家

1.本图尺寸以毫米为单位

2.立柱基础采用C25混凝土。

3.除网片钢丝为一般用途低碳钢丝外,所有钢材均为Q235钢,其力学性能应符合GB700-2006要求。

4.所有钢构件均应进行防腐处理,详见设计说明。

5.网片钢丝采用镀锌钢丝,其力学性能应符合《一般用途低碳钢丝》中对镀锌钢丝的相关要求,抗拉强度为295MPa~540MPa。


  
24小时咨询热线:13292231119QQ在线咨询:3219383557 微信号:13292231119
二维码 二维码
在线客服

安平县秉德丝网制品有限公司

QQ交谈

咨询电话

实力打造品质

诚信统领市场