欢迎来到安平县秉德丝网制品有限公司网站!

联系我们
网站地图 | 
安平县秉德丝网制品有限公司

热门关键词搜索: 双边丝护栏网锌钢护栏网勾花护栏网市政护栏网车间隔离栅框架护栏网防眩网

网站首页 > 技术支持

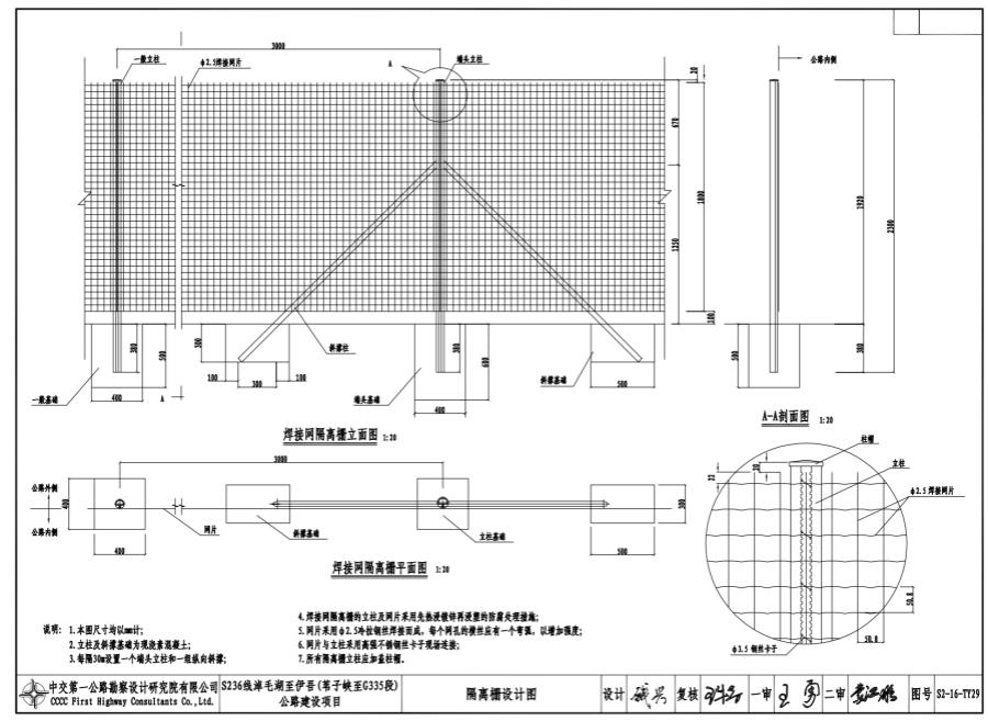
S236线淖毛湖至伊吾(苇子峡至G335段)公路建设项目焊接网隔离栅生产厂家

添加日期:2025-07-24 阅读量:

S236线淖毛湖至伊吾(苇子峡至G335段)公路建设项目焊接网隔离栅生产厂家

1.本图尺寸均以mm计。

2.立柱及斜撑基础为现浇素混凝土。

3.每隔30m设置一个端头立柱和一组纵向斜撑。

4.焊接网隔离栅的立柱及网片采用先热浸镀锌再浸塑的防腐处理措施。

5.网片采用由2.5mm冷拉钢丝焊接而成,每个网孔的横丝应有一个弯弧,以增加强度。

6.网片与立柱采用高强不锈钢丝卡子现场连接。

7.所有隔离栅立柱应加盖柱帽。


  
24小时咨询热线:13292231119QQ在线咨询:3219383557 微信号:13292231119
二维码 二维码
在线客服

安平县秉德丝网制品有限公司

QQ交谈

咨询电话

实力打造品质

诚信统领市场