欢迎来到安平县秉德丝网制品有限公司网站!

S236线淖毛湖至伊吾(苇子峡至G335段)公路建设项目防眩设施防眩网生产厂家
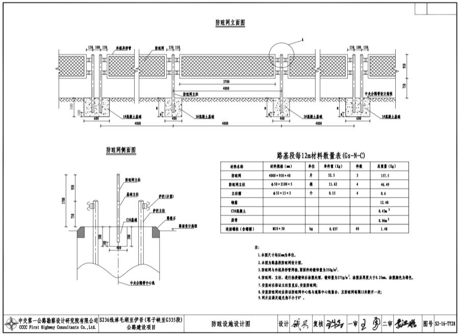
1.本图尺寸均以mm为单位。
2.本图为路基段防眩网设计图。
3.防眩网与外框异形管焊接,紧固件的镀锌量为350g/㎡。
4.防眩网、立柱,进行热浸镀锌后涂塑处理,镀锌量为275g/㎡,涂塑层厚度大于0.25m,涂颜色为绿色。
7.安装时在保证立柱竖直后,安装防眩网。
8.安装防眩网时应保证防眩网中心线与道路中心线重合,且防眩网每隔12米断开一次。
9.网片应满足遮光角不小于8°。