欢迎来到安平县秉德丝网制品有限公司网站!

联系我们
网站地图 | 
安平县秉德丝网制品有限公司

热门关键词搜索: 双边丝护栏网锌钢护栏网勾花护栏网市政护栏网车间隔离栅框架护栏网防眩网

网站首页 > 技术支持

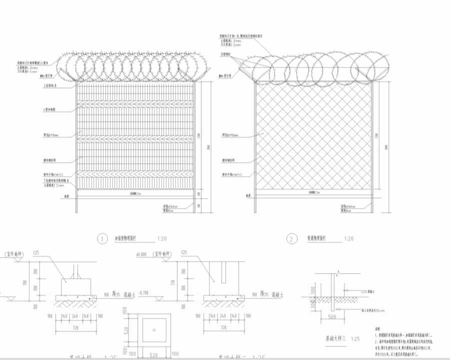
海南省东方市护栏网生产厂家

添加日期:2025-12-01 阅读量:

海南省东方市护栏网生产厂家

网片50*170*3.0mm;

立柱方管60*2.0mm;

立柱顶部焊接V型支架;

刀刺网φ500mm;

网片底部安装刺绳;

立柱预埋地下300mm;

产品表面热镀锌防腐工艺处理。


  
24小时咨询热线:13292231119QQ在线咨询:3219383557 微信号:13292231119
二维码 二维码
在线客服

安平县秉德丝网制品有限公司

QQ交谈

咨询电话

实力打造品质

诚信统领市场