欢迎来到安平县秉德丝网制品有限公司网站!
热门关键词搜索: 双边丝护栏网、 锌钢护栏网、 勾花护栏网、 市政护栏网、 车间隔离栅、 框架护栏网、 防眩网
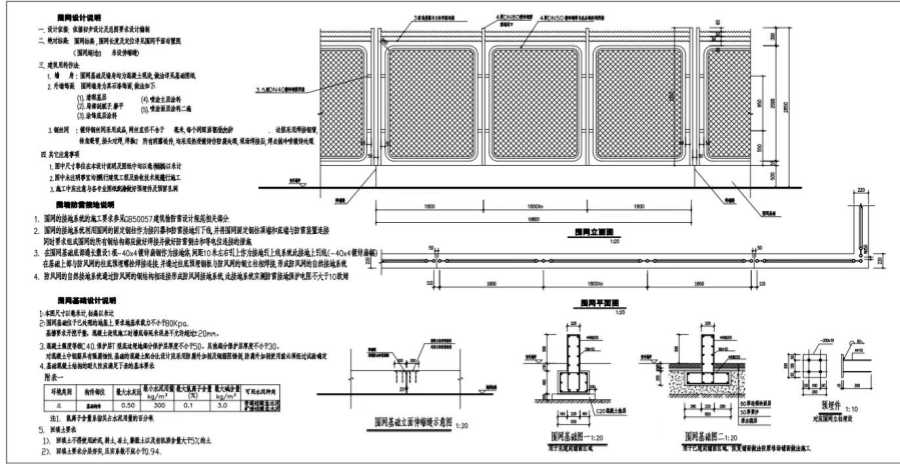
江苏盐城综合保税区围网生产厂家
网片50*50*5.0mm;
连接管DN40*3.5mm;
边框DN50*4.0mm;
立柱DN80*4.0mm;
顶部三道刺绳;
使用黑材焊接+整体热镀锌防腐工艺处理。
实力打造品质
诚信统领市场