欢迎来到安平县秉德丝网制品有限公司网站!

联系我们
网站地图 | 
安平县秉德丝网制品有限公司

热门关键词搜索: 双边丝护栏网锌钢护栏网勾花护栏网市政护栏网车间隔离栅框架护栏网防眩网

网站首页 > 技术支持

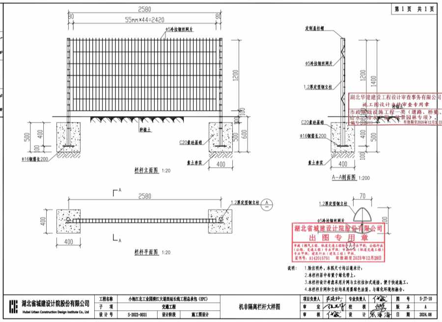
湖北机非隔离栏杆专业生产厂家

添加日期:2025-08-08 阅读量:

湖北机非隔离栏杆专业生产厂家

1.除注明外,本图尺寸均以毫米计。

2.本栏杆居中布置于绿化带上。

3.本栏杆设计考虑采用片网与立柱拉扣式连接,便于快速施工。

4.本栏杆片网和立柱均采用墨绿色涂装,与绿化环境相融合。


  
24小时咨询热线:13292231119QQ在线咨询:3219383557 微信号:13292231119
二维码 二维码
在线客服

安平县秉德丝网制品有限公司

QQ交谈

咨询电话

实力打造品质

诚信统领市场