欢迎来到安平县秉德丝网制品有限公司网站!

乌兰哈达火山地质公园分布式光伏建筑一体化项目-设备围栏生产厂家
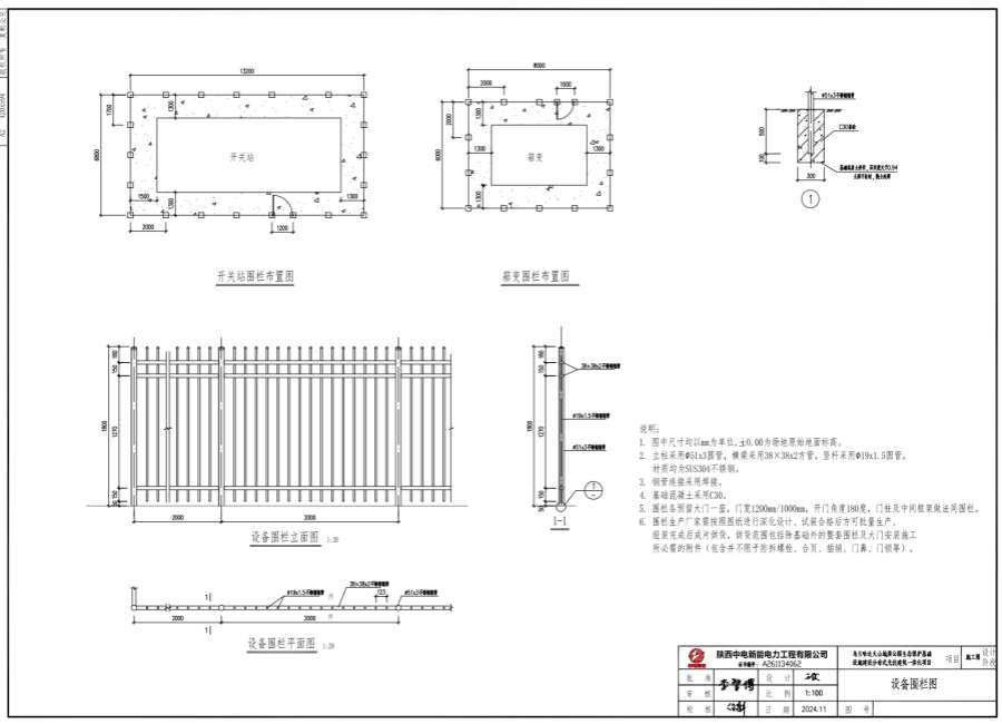
说明:
1.图中尺寸均以mm为单位,土0.00为场地原始地面标高。
2.立柱采用φ51x3圆管,横梁采用38X38x2方管,坚杆采用φ19x1.5圆管,材质均为SUS304不锈钢。
3.钢管连接采用焊接。
4.基础混凝土采用C30。
5.围栏各预留大门一座,门宽1200mm/1000mm,开门角度180度,门柱及中间框架做法同围栏
。
6.围栏生产厂家需按照图纸进行深化设计、试装合格后方可批量生产。组装完成后成片供货,供货范围包括除基础外的整套围栏及大门安装施工。所必需的附件(包含并不限于防拆螺栓、合页、插销、门鼻、门锁等)。