欢迎来到安平县秉德丝网制品有限公司网站!

联系我们
网站地图 | 
安平县秉德丝网制品有限公司

热门关键词搜索: 双边丝护栏网锌钢护栏网勾花护栏网市政护栏网车间隔离栅框架护栏网防眩网

网站首页 > 技术支持

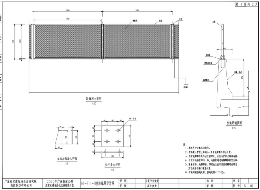
2025年广深高速公路新塘互通连接线设施维修工程Bf-Em-B型防抛网生产厂家

添加日期:2025-07-19 阅读量:


2025年广深高速公路新塘互通连接线设施维修工程Bf-Em-B型防抛网生产厂家

1、本图尺寸以毫米为单位

2、在混凝土护栏上每隔2m预埋地脚螺栓和法兰盘。

3、预埋地脚螺栓先与法兰盘焊死,且其与护栏主筋相连接。

4、立柱与连接板焊为一体,连接板通过地脚螺栓固定生根。

5、除紧固件、地脚螺栓、预埋法兰盘采用热浸镀锌处理外,其它构件均进行镀塑处理。

6、防抛网做接地处理,接地电阻小于10欧姆。


  
24小时咨询热线:13292231119QQ在线咨询:3219383557 微信号:13292231119
二维码 二维码
在线客服

安平县秉德丝网制品有限公司

QQ交谈

咨询电话

实力打造品质

诚信统领市场