欢迎来到安平县秉德丝网制品有限公司网站!

联系我们
网站地图 | 
安平县秉德丝网制品有限公司

热门关键词搜索: 双边丝护栏网锌钢护栏网勾花护栏网市政护栏网车间隔离栅框架护栏网防眩网

网站首页 > 技术支持

出口防攀爬围栏网生产厂家

添加日期:2025-07-17 阅读量:


出口防攀爬围栏网生产厂家

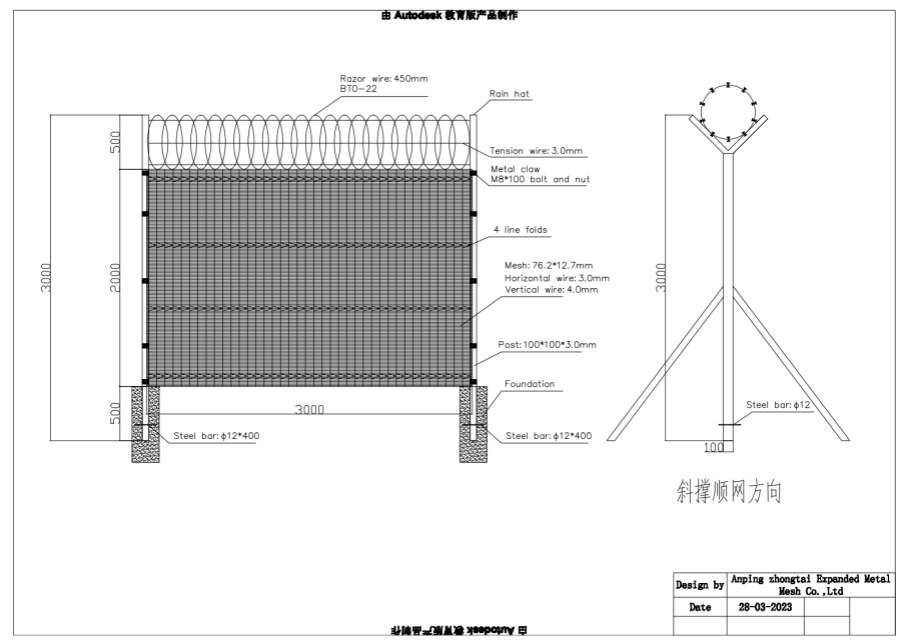
围栏·面板规格:面板尺寸3305mmx2500mm,孔径尺寸(中心)76.2mmx 12.7mm,电线尺寸定制(最小4mm/4mm)、水亚带4x50mm深V法兰2x70°x75mm+2x30°或2x90°x50mm、包括通孔螺栓系统立柱规格:栅栏板高度2.5米,立柱长度至少3.0米,立柱尺寸85mmx45mmx85mm锥形柱或150mmx75mmx150mm 锥形柱锁定凹槽机制包括,包括聚合物盖,后处理镀锌并涂有铝。


  
24小时咨询热线:13292231119QQ在线咨询:3219383557 微信号:13292231119
二维码 二维码
在线客服

安平县秉德丝网制品有限公司

QQ交谈

咨询电话

实力打造品质

诚信统领市场