欢迎来到安平县秉德丝网制品有限公司网站!

联系我们
网站地图 | 
安平县秉德丝网制品有限公司

热门关键词搜索: 双边丝护栏网锌钢护栏网勾花护栏网市政护栏网车间隔离栅框架护栏网防眩网

网站首页 > 技术支持

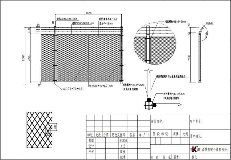
菱形孔焊接网片保税区围网专业生产厂家

添加日期: 阅读量:

菱形孔焊接网片保税区围网专业生产厂家
1、保税区围网网丝采用Q235低碳钢丝,网丝直径4.5mm。
2、保税区围网网片采用斜方孔网电焊网片款式,网孔对角线间距55*100mm;
3、保税区围网边框使用30*50*1.0mm矩形管,竖撑采用20*40*1.0mm矩形管;
4、保税区围网立柱使用60*60*1.2mm方管,立柱焊接75*75*6.0mm法兰盘;
5、保税区围网立柱顶部焊接三个刺绳挂钩,链接三道刺绳防攀爬;
6、保税区围网产品表面采用热镀锌喷塑防腐工艺处理。

  
24小时咨询热线:13292231119QQ在线咨询:3219383557 微信号:13292231119
二维码 二维码
在线客服

安平县秉德丝网制品有限公司

QQ交谈

咨询电话

实力打造品质

诚信统领市场