欢迎来到安平县秉德丝网制品有限公司网站!

联系我们
网站地图 | 
安平县秉德丝网制品有限公司

热门关键词搜索: 双边丝护栏网锌钢护栏网勾花护栏网市政护栏网车间隔离栅框架护栏网防眩网

网站首页 > 技术支持

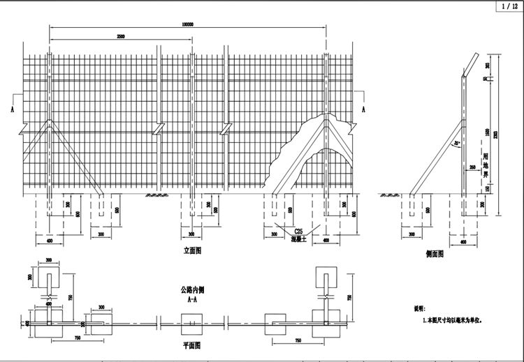
高速公路U型槽钢立柱焊接网隔离栅生产厂家

添加日期: 阅读量:

高速公路U型槽钢立柱焊接网隔离栅生产厂家
1.本图焊接网隔离栅尺寸均以毫米为单位。
2.焊接网隔离栅立柱加工完毕后进行热浸镀锌浸塑复合涂层防腐,镀锌量应不低于275g/㎡。涂塑层厚度应大于0.25mm,颜色为绿色。
3.焊接网隔离栅焊接网采用绿色,镀锌量应不低于90g/㎡,浸塑涂层厚度应大于0.15mm,焊接网张拉紧后,将所有钢丝弯折紧扣在立柱网扣上。
4.本图适用于焊接网隔离栅跨越小沟渠。当沟渠宽度小于3. 0米时,立柱间距D=3. 0米;当沟渠宽度大于等于3.0米时,若沟渠上有结构物,焊接网隔离栅按跨越结构物所对应的形式设置,若无结构物,焊接网隔离栅应沿沟渠横断面设置。
5.封闭沟渠的热浸镀锌浸塑焊接网的宽度视沟渠上边缘宽度而定。
6.焊接网下部各钢丝断开后分别绕在底部钢筋上,埋入土中夯实。
7.焊接网隔离栅沿公路用地界布置,立柱在用地界内侧25cm处。
8.用地界内地面必须进行修整、顺坡、整平,使焊接网隔离栅立柱水平安装或顺斜坡安装。
9.焊接网隔离栅在平面拐点加单向支撑,在跨越沟渠或其它障碍物时加二向支撑,在平直段每100m加一个三向支撑,其它不加支撑。

  
24小时咨询热线:13292231119QQ在线咨询:3219383557 微信号:13292231119
二维码 二维码
在线客服

安平县秉德丝网制品有限公司

QQ交谈

咨询电话

实力打造品质

诚信统领市场