欢迎来到安平县秉德丝网制品有限公司网站!

联系我们
网站地图 | 
安平县秉德丝网制品有限公司

热门关键词搜索: 双边丝护栏网锌钢护栏网勾花护栏网市政护栏网车间隔离栅框架护栏网防眩网

网站首页 > 技术支持

广州高速公路钢板网隔离栅专业生产厂家

添加日期: 阅读量:

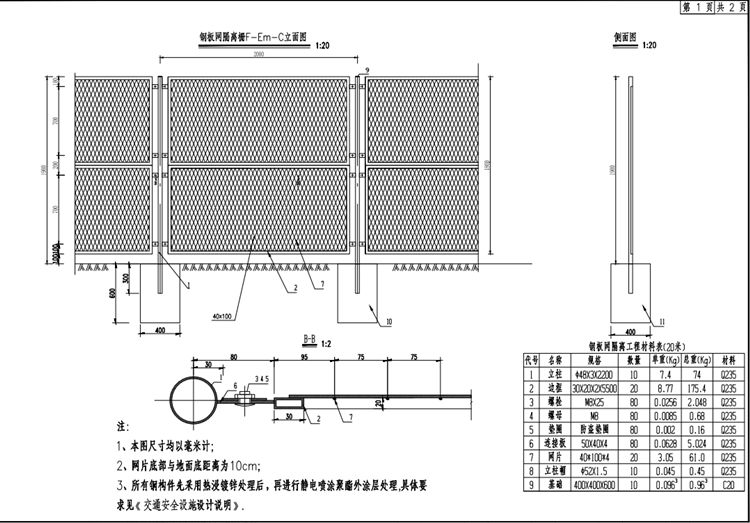
广州高速公路钢板网隔离栅设计规范
1、立柱规格,Φ48*3.0mm,长度2.2米,预埋地下0.3米。
2、边框规格,矩形管20*30*2.0mm,上下两片生产。
3、网片规格,使用钢板网款式网片,网格大小40*100mm,网丝4.0mm。
4、整体尺寸,高度1.9米,跨距2.0米,安装时网片距离地面10cm。
5、产品表面热浸镀锌+静电喷涂聚酯外涂层防腐工艺处理。

  
24小时咨询热线:13292231119QQ在线咨询:3219383557 微信号:13292231119
二维码 二维码
在线客服

安平县秉德丝网制品有限公司

QQ交谈

咨询电话

实力打造品质

诚信统领市场