欢迎来到安平县秉德丝网制品有限公司网站!

联系我们
网站地图 | 
安平县秉德丝网制品有限公司

热门关键词搜索: 双边丝护栏网锌钢护栏网勾花护栏网市政护栏网车间隔离栅框架护栏网防眩网

网站首页 > 技术支持

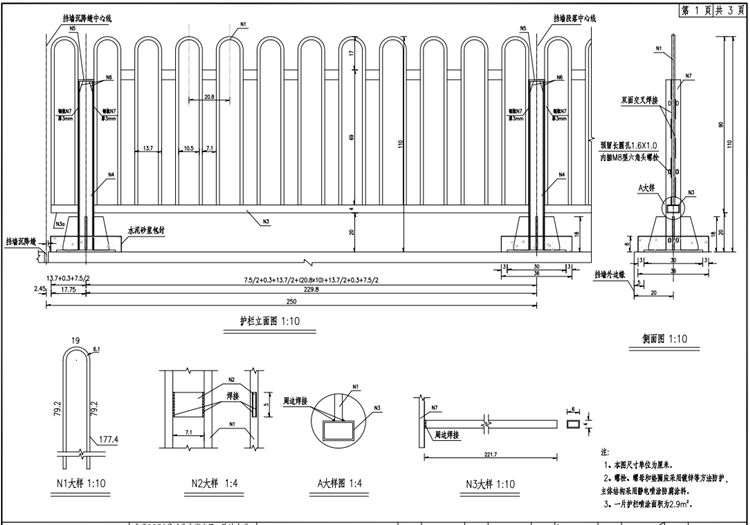
非机动车道改建工程人行道栏杆价格多少钱一米

添加日期: 阅读量:

一、非机动车道改建工程人行道栏杆设计要求:
1、本图非机动车道改建工程人行道栏杆尺寸单位为厘米。
2、非机动车道改建工程人行道栏杆螺栓、螺母和垫圈应采用镀锌等方法防护,主体结构采用静电喷涂防腐涂料。
3、非机动车道改建工程人行道栏杆一片护栏喷涂面积为2.9㎡。
4、非机动车道改建工程人行道栏杆基础法兰盘的固定使用M16膨胀螺栓,螺栓施工前应进行抗拔试验,抗拔力大于30.0KN。
5、非机动车道改建工程人行道栏杆立柱安装好后,用水泥砂浆对基础法兰盘及膨胀螺栓进行包封处理,包封高度为8cm。
二、非机动车道改建工程人行道栏杆技术参数:
1、方管立柱75*75*4.8mm;
2、方管横管40*60*3.0mm;
3、实心方钢竖管16*16mm;
4、连接件扁钢71*50*8mm;
5、焊接扁钢条880*75*3mm;
6、立柱底板300*300*10mm;
7、底板加强肋80*180*10mm。

  
24小时咨询热线:13292231119QQ在线咨询:3219383557 微信号:13292231119
二维码 二维码
在线客服

安平县秉德丝网制品有限公司

QQ交谈

咨询电话

实力打造品质

诚信统领市场