欢迎来到安平县秉德丝网制品有限公司网站!

联系我们
网站地图 | 
安平县秉德丝网制品有限公司

热门关键词搜索: 双边丝护栏网锌钢护栏网勾花护栏网市政护栏网车间隔离栅框架护栏网防眩网

网站首页 > 技术支持

公路大桥扩建焊接网隔离栅生产厂家

添加日期: 阅读量:

公路大桥扩建焊接网隔离栅相关说明:
本项目所在地穿越城区,周边区域经济相对较为发达,全线均采用焊接网隔离栅。
一、设计原则
1.焊接网隔离栅的结构坚固,经济、美观。
2.能够阻止人畜攀爬、钻入,避免人畜进入或穿越公路。
3.在各类构造物的锥坡及墙体处,应有较好的封闭措施。要正确地处理好焊接网隔离栅跨越障碍物。
4.焊接网隔离栅的各部件,应有较好的防腐措施。
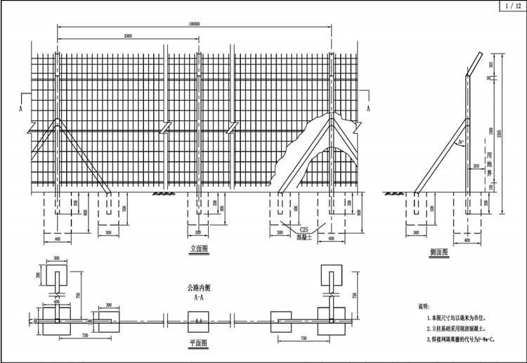
5.焊接网隔离栅代号如下:F-Ww- C焊接网隔离栅,埋设于混凝土基础中。
二、技术要求
1.焊接网隔离栅网片的制作,要求网眼均匀、美观。
2.立柱及斜撑,采用冷弯等边槽钢,并应符合JTGF71 -2006的规定。
3.焊接网隔离栅的所有金属部件,均采用绿色涂塑处理。立柱、斜撑、紧固件、连接件的涂塑层厚度应不低于0.38mm,隔离栅钢丝的涂塑层厚度应不低于0.30mm。
4.防腐处理应符合GB/T18226-2015《公路交通工程钢构件防腐技术条件》的有关规定。
三、施工要求
1.焊接网隔离栅沿公路用地界布置,立柱设置在用地界内侧25厘米处。
2.因为公路用地界线不很规则,为保证焊接网隔离栅的整体性和结构的坚固、美观,在平面上,应尽量采用较长的直线布置原则,同时又要尽可能地将公路用地隔离进来。在纵断面上,对不平整的地形,应尽量整成直线平坡或斜坡,使结构上在短距离内不要有较大起伏,增强结构的连续性及稳定性,使之平顺美观。
3.焊接网隔离栅立柱间距一般为2.5米。特殊情况下,可适当增大或减小。
4.焊接网安装时,应将网端钢丝穿入立柱预留孔及立柱网扣中,张紧网面,然后将钢丝弯折、压紧。
5.焊接网隔离栅封闭锥坡桥台时,为了避免立柱基础土层松动及水流冲刷,应将基础放置在石砌锥坡之上。将砌石挖开,埋入立柱及基础后,再恢复锥坡。
6.焊接网隔离栅端头,采用M12 X 150mm膨胀螺栓固定。螺栓固定应牢固,其允许拉力应不小于1000kg。
7.焊接网隔离栅基础设计采用现浇施工。在保证施工质量的前提下,可以采用预制。焊接网隔离栅基础的混凝土强度为C25。
8.立柱混凝土基础强度达到70%以后,方可安装焊接网隔离栅网片。
9.焊接网隔离栅在高压输电线下方通过时,隔离栅应按电力部门的规定接上地线,防雷接地的阻抗应小于10。
10.新建的焊接网隔离栅应与本项目相交叉高速公路原有焊接网隔离栅顺接。
11.蒸发池外用焊接网隔离栅封闭,并设养护出入门。
12.蒸发池焊接网隔离栅应与主线焊接网隔离栅顺接,并形成闭合:如蒸发池为单独设置,则焊接网隔离栅闭合设置。
13.桥梁等路段焊接网隔离栅封闭应该根据现场实际情况及有关部门要求进行适当调整。
14、对分离路基段,焊接网隔离栅应根据征地界将左右幅中间部分封闭。

  
24小时咨询热线:13292231119QQ在线咨询:3219383557 微信号:13292231119
二维码 二维码
在线客服

安平县秉德丝网制品有限公司

QQ交谈

咨询电话

实力打造品质

诚信统领市场