欢迎来到
安平县秉德丝网制品有限公司
网站!
联系我们
网站地图
|
网站首页
企业简介
产品展示
按用途分类
按结构分类
工厂展示
案例展示
技术支持
联系我们
热门关键词搜索:
双边丝护栏网
、
锌钢护栏网
、
勾花护栏网
、
市政护栏网
、
车间隔离栅
、
框架护栏网
、
防眩网
网站首页
>
技术支持
按用途分类
高速公路围栏
铁路高铁围栏
监狱机场围栏
河道水库围栏
城市道路围栏
公路防眩网
桥梁防抛网
光伏发电围栏
保税区域围栏
车间仓库围栏
市政工程围栏
果园山林围栏
草坪绿化围栏
厂区工地围栏
体育场所围栏
居民小区围栏
养殖畜牧围栏
基坑临边围栏
京式护栏围栏
更多
按结构分类
框架围栏
双边丝围栏
三角折弯围栏
热浸镀锌围栏
浸塑喷塑围栏
勾花网围栏
桃形柱围栏
刀刺网围栏
刺铁丝围栏
钢板网围栏
锌钢围栏
双圈围栏
塑料钢围栏
荷兰网围栏
更多
编织网隔离栅生产制造厂家
添加日期:
阅读量:
一、编织网隔离栅布设原则
编织网隔离栅的主要作用是将公路用地隔离出来,同时将可能影响交通安全的人和畜等与高速公路分离开来,保证高速公路的正常运营。本路编织网隔离栅在公路地界线以内 30cm 处设置,全线进行封闭布设,在遇到桥梁、通道或天然障碍物时断开封死,不留有人、畜进入的空隙,如遇到小涵洞或小障碍物时,编织网隔离栅则直接跨过。根据本路在山东省公路网中的位置,以及本路段的实际情况,综合考虑经济性、实用性和美观性,以及沿线村镇的稠密程度,本设计主线普通路段采用编织网隔离栅。现场既有的旧隔离栅可用于施工过程中的临时隔离用。
二、编织网隔离栅结构类型
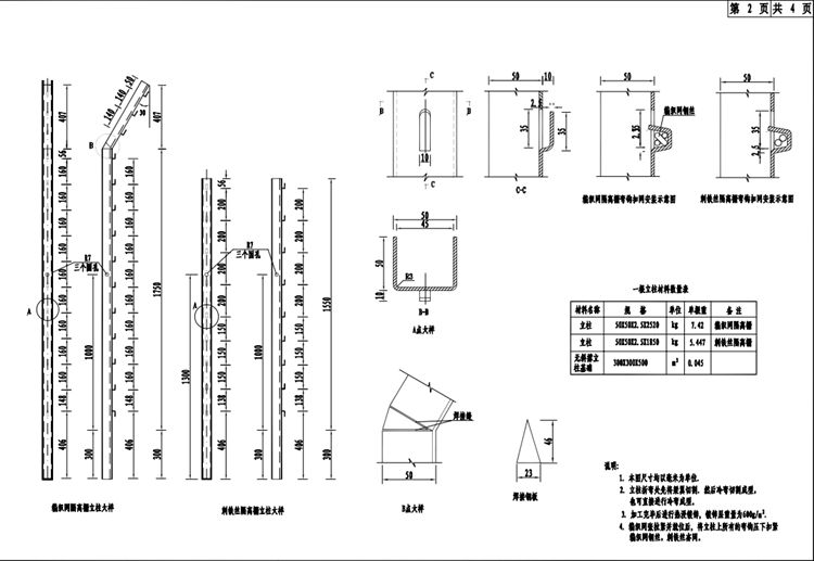
编织网隔离栅的立柱采用冷弯等边槽钢,编织网孔尺寸160*80mm,立柱间距为3m。每隔99m设置一处三向斜撑,凡拐角处均应设置单向斜撑。在跨越天然障碍时,编织网隔离栅的端头立柱均应设置垂直双向斜撑。编织网隔离栅的所有钢构件均应进行热浸镀锌处理,立柱、斜撑等构件的镀锌量为600g/㎡,螺栓、螺母等连接件的镀锌量为350g/㎡,钢丝的镀锌量为120g/㎡。热浸镀锌所用的锌应为《锌锭》(GB470-2008)中所规定的Zn99.995号锌。浸塑材料采用聚乙烯(PE)高分子涂料,立柱、斜撑浸塑层厚度>0.25mm,网片浸塑层厚度>0.15mm,颜色为绿色,全线色号应统一。防腐要求须满足《公路交通工程钢构件防腐技术条件》(GB/T 18226-2015)的规定,涂层性能应满足《公路用防腐蚀粉末涂料及涂层》(JT/T600.1-2004~JT/T600.4-2004)的规定和要求。立柱基础采用 C20 预制素混凝土,斜撑基础为 C20 现浇素混凝土。
三、编织网隔离栅技术要求及施工注意事项
1.编织网隔离栅的安装施工一般宜在路基施工完成以后,在不影响工程施工的情况下,尽早开始;
2.编织网隔离栅安装施工前应做出详细的施工组织设计;
3.编织网隔离栅应严格按设计图进行施工放样,先定中心线,然后按设计的柱距定出柱位。
4.编织网隔离栅每个柱位均应按设计要求确定高程。并与公路界地形相协调,必要时,应按规定进行整修;
5.编织网隔离栅柱孔深度应符合设计要求,挖到设计要求深度后,应将基底清净,经检验合格后,方准进行下道工序;
6.编织网隔离栅柱坑底可垫混凝土,放入立柱后,检查柱顶标高,并用临时支撑固定立柱,检查其垂直度;
7.编织网隔离栅立柱的埋设,应分段进行,先埋两端的立柱,然后拉线埋设中间立柱。立柱纵向应在一条直线上,不得出现参差不齐的现象。柱顶应平顺,不得出现高低不平的情况;
8.编织网隔离栅立柱的埋置深度,地面高度、垂直度检查无误后,方可浇灌混凝土,分层捣实;
9.编织网隔离栅网片安装要求网面平整,无明显凹凸现象,框架与立柱连接牢固,整体连接平顺。网片安装完毕后,立柱基础均应进行最后夯实处理;
10.编织网隔离栅立柱及网片钢丝的强度均应满足国家标准要求。
上一条:
F-Ww-C焊接网隔离栅生产制造厂家
下一条:
F-Wn-C编织网隔离栅生产厂家
相关产品
高速公路围栏
铁路高铁围栏
监狱机场围栏
相关新闻
2025-12-01
山东省潍坊市水利灌溉框架防护网生产厂家
2025-12-01
辽宁省本溪市明山区新建立交京式机非隔离栏杆生产厂家
2025-12-01
辽宁省本溪市明山区新建立交FLW-1防落网生产厂家
2025-12-01
海南省东方市护栏网生产厂家
2025-12-01
济南刺钢丝网隔离栅生产厂家
2025-12-01
湖南怀化铝包钢丝菱形网围界生产厂家
24小时咨询热线:
13292231119
QQ在线咨询:
3219383557
微信号:
13292231119
在线客服
安平县秉德丝网制品有限公司
QQ交谈
在线客服
咨询电话
13292231119
实力打造品质
诚信统领市场